
Casa solare passiva a Rosignano
- PROGETTO: Architetto Francesco Garzella
- COLLABORATORI: Architetto Roberta Cecchi (ArchiRADAR)
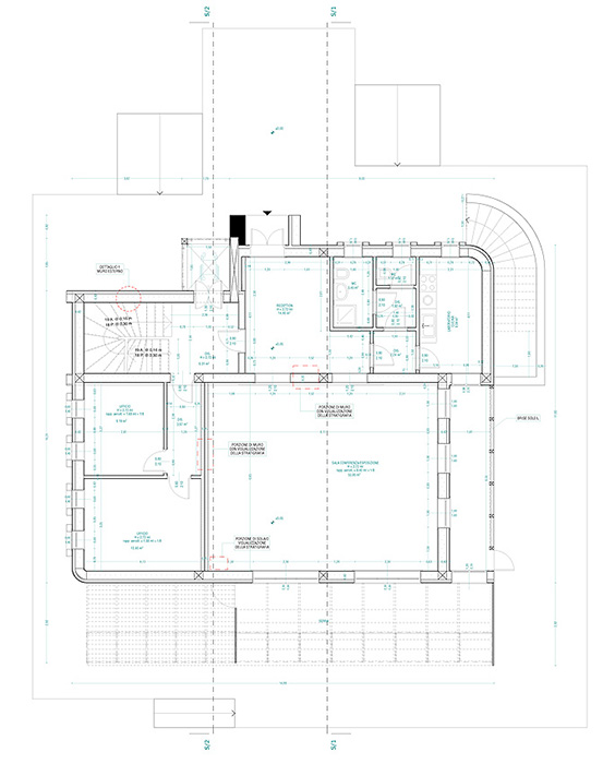
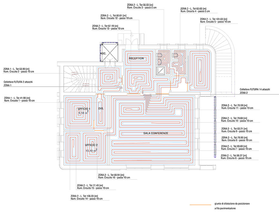
Abitazione solare passiva, in classe A+, per il comune di Rosignano (Livorno) realizzata con il supporto di un modello virtuale con metodologia BIM.







