
Edificio residenziale a Latina
- PROGETTO: Architetto Mario Sacco (ArchiRADAR)
- PARTNER: Studio Structura Srl
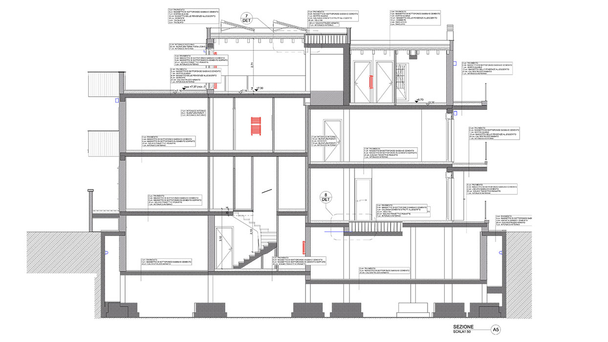
Progetto di un edificio residenziale a Latina realizzato con il supporto di un modello virtuale realizzato con metodologia BIM.
Il modello è stato utilizzato per la redazione di tutti gli elaborati, per il calcolo delle quantità, per la verifica dei nodi complessi, per la simulazione fotorealistica e per il supporto in cantiere. Il modello virtuale è stato adottato sia per la parte edilizia che per una prima bozza di progetto strutturale, in gran parte già preesistente; l'interoperabilità garantita dallo scambio di modelli virtuali con chi si occupava delle strutture ha consentito un aggiornamento continuo dell'architettonico in base ai requisiti dello strutturale. L'intero cantiere è stato seguito mantenendo fedele la corrispondenza fra progetto virtuale e costruito al fine di rendere sempre subito compatibili qualsiasi modifiche. Il metodo di applicazione di un modello informativo ha seguito in questo caso tutto il processo edilizio, dalla fase preliminare fino alla realizzazione; l'utilizzo di questo metodo ha garantito sin da subito un percorso lineare senza imprevisti sulle quantità è sulle proporzioni.






