Il render schizzo di ArchiCAD

In molti casi è utile e bello nelle presentazioni inserire delle viste, delle piante o delle sezioni realizzate con il motore rendering "schizzo". Per realizzare le viste valgono gli stessi criteri del fotorendering come settaggi della vista: assonometria, prospettiva sezione spaccato 3d, sezione 3d etc. Semplicemente si seleziona un altro motore di rendering. E' possibile ottenere viste con vari livelli di dettaglio, con o senza retinature, molto tecniche oppure più "artistiche".
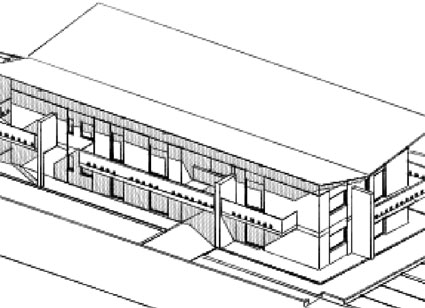
Come esempio per questo tutorial ho preso un file di una palazzina su cui sto lavorando. Una volta aperto il file e decisa la vista che vogliamo ottenere con la tecnica a schizzo, in questo caso un assonometria, dal menu motori di rendering si sceglie quello a schizzo.

 
 
 
 
Il passo successivo è la selta delle impostazioni del motore a schizzo, tali impostazioni determinano il tipo di resa dell'immagine, ossia il tipo di tratto, la precisione, la deformazione data dall'effetto mano libera, la simulazione di vari tipi di strumento grafico (dal pennello alla matita tecnica), il colore ecc.
 
 
Per familiarizzare con i settaggi è comodo fare alcune prove con lo steso progetto, consiglio un immagine molto semplice per avere un rendering molto veloce.
 
 
Nella parte alta della finestra sono presenti i soliti settagli di dimensione e risoluzione dell rendering che andremo ad ottenere. Nella seconda parte invece abbiamo 2 menu a tendina. Il primo è lo stile schizzo.
 
 
 
Ognuna di queste voci corrisponde ad uno stile grafico diverso che avrà l'immagine finale , come accennato si passa dagli stili tecnici a quelli più artistici , dall'effetto matita a quello acquerellato. Selezionando uno stile (esempio copper head)si vedrà che nel secondo menu a tendina corrisponde un tipo di tratto ben specifico, infatti ogni stile è reimpostato con suo tipo di tratto che ha delle caratteristiche ben definite, allo stile copper head corrisponde il tipo di tratto 08_penna e acqua.
 
 

I settaggi comprendono inoltre attivazione di ombre, retini, e di tutti parametri del tratto. È possibile tutta via cambiare lo stile di linea a proprio piacimento, mantenendo le impostazioni dello stile di schizzo, in questo modo si hanno infinite possibilità di personalere gli effetti grafici.

 
 
 
Se si cambia lo stile di linea automaticamente lo stile di schizzo diventa personalizzato.
 
 
 
Le combinazioni danno effetti molto diversi e particolari, conviene fare un po' di prove per familiarizzare con i vari tipi, magari partendo dagli stili reimpostati e poi facendo qualche combinazione, una volta scelto uno stile di linee di schizzo si possono ulteriormente personalizzare gli effetti agendo sui menu a tendina relativi ai vari parametri.
 
 
 
È impossibile illustrare ogni stile ed ogni combinazione, mi limiterò quindi a spiegare quelli i settagli che uso abitualmente; quelli , che danno come risultato un immagine abbastanza pulita ma con un effetto mano libera molto piacevole a vedersi. Per tutte le altre combinazioni lascio spazio alla fantasia ed alla voglia di chi vuole provare. Per prima cosa decidiamo la nostra vista e nei settaggi dello schizzo selezioniamo lo stile koinor che automaticamente ci darà lo stile linea matita tecnica.
 
 
 

In questo modo il motore carica i settaggi predefiniti.

 

Personalizzare gli stili della linea del Rendering Schizzo
All'interno della finestra settaggi fotorendering troviamo una serie di finestre a tendina che servono a settare l'aspetto grafico del rendering a schizzo. La prima è la finestra settaggi di base, di cui si sono già visti gli stili e la funzione ombre vettoriali.

 

 

Oltre a questi si possono settare i colori con cui si vuole che venga realizzato lo schizzo. La voce tessiture vettoriali la vedremo più avanti un capitolo a parte. Nel pannello "Miglioramenti" si possono settare alcuni parametri che influiscono sulla qualità dell'immagine ottenuta.
 
 
 
 
Tra questi il più interessante è la voce prospettiva aerea da un effetto dissolvenza verso le parti più lontane della vista, che altrimenti risulterebbe uniforme in ogni sua parte come intensità di tratto.
 
 
 
 

Il motore di rendering permette di personalizzare in maniera diversificata lo stile della linea con cui viene rappresentato il progetto, le ombre , i retini, ed un eventuale sfondo. La renderizzazione degli oggetti presenti nelle viste avviene tramite delle linee, cosi come pure le ombre ed i retini vettoriali. La personalizzazione dei parametri delle linee con cui verranno visualizzati i retini delle ombre nel progetto, avviene nelle relative finestre a scomparsa:

SETTAGGI LINEA SCHIZZO per le linee del progetto

SETTAGGI LINEA RETINATURA per le linee dei retini vettoriali

SETTAGGI LINEA OMBRA per le linee delle ombre Vediamo adesso su cosa influiscono i vari parametri.

La prima immagine di raffronto è stata realizzata tenendo i parametri preimpostati dello stile schizzo koinor e dello stile linea a lui collegato, variando di volta in volta un solo parametro.

 

SETTAGGI LINEA SCHIZZO

 

 

L'immagine seguente è realizzata con i parametri con impostazione di default:

 

L'immagine sottostante è realizzata con AUMENTO DELLO SPESSORE: la linea è più secca e netta:

 

L'immagine seguente è ottenuta con ESTENSIONE DELLA LINEA: aumentando il parametro la linea continua oltre al vertice o oltre allo spigolo.

 

DISTORSIONE: in questa successiva immagine le linee risultano meno precise e sono spesso storte e si raccordano male.

 

SETTAGGI LINEA RETINATURA

Le prime tre impostazioni hanno gli stessi effetti di quanto spiegato precedentemente ma agiscono solo sulle linee dei retini, la voce ha l'effetto di semplificare la linea dei retini più lontani per evitare un risultato pari ad una macchia nera per retini molto complessi.

 

SETTAGGI LINEA OMBRA

 

Vale quanto detto precedentemente per le prime tre impostazioni che sono le stesse, si aggiunge l'OSCURITA', che serve a fare i tratteggi delle ombre più o meno marcate e quindi un'ombra più o meno scura e lo spazio, ossia lo spazio tra un tratteggio e l'altro dell'ombra.
Immagine ottenuta con i parametri di default:

 

 

Immagine ottenuta diminuendo il parametro OSCURITA':

 

Immagine ottenuta con l'aumento del parametro SPAZIO:

 

OMBRE VETTORIALI

 

 

Attivando la voce Ombre Vettoriali si abilitano le ombre con retinatura oppure con la sola linea di contorno. Di seguito due immagini esplicative di questi due settaggi:

 

Nel pannello Settaggi Linea Ombra si determinano i parametri grafici dell'aspetto della linea. Variandoli si possono ottenere vari effetti come ad esempio il cambiamento dell'oscurità delle zone in ombra.

 

(NB la variazione di uno qualunque di questi parametri farà diventare il nome dello stile di schizzo in personalizzato non più koinor)

 

Come nel fotorendering la posizione e direzione delle ombre è data dal sole. Per modificare la direzione dell'ombra è sufficiente variare la posizione del sole come nei normali fotorendering e rigenerare la vista 3D.

 

 

CAMPITURE VETTORIALI

E' possibile visualizzare dei retini vettoriali nel rendering a schizzo. Il retino che si vuole visualizzare deve essere settato pima nella finestra di dialogo di impostazioni dei materiali, nella sezione retino vettoriale.

 

NB: È possibile applicare un qualunque retino, anche personalizzato ma non un retino di una struttura composta. il retino non potrà essere ruotato, quindi può essere necessario creare un nuovo retino ruotato nel seno giusto. Prendiamo per esempio il tetto, nell'immagine che segue è liscio perché alla falda ho assegnato un materiale senza alcun retino vettoriale, il material C01 per l'esattezza. Per prima cosa andiamo nella finestra settagli dei materiali ed assegnamo un retino , un semplice tratteggio verticale.

 
 
 
Se nella lista dei retini non è presente nessun retino di quel tipo allora dalla finestra tipi di retino vediamo di crearne uno o di duplicare un retino esistente e quindi modificarlo.
 
 
 

Una volta realizzato il retino torniamo nella finestra settaggi materiale ed assegniamo il retino corretto al materiale C01. Torniamo nella finestra dei settaggi motore rendering e verifichiamo che sia spuntata la voce "mostra campiture vettoriali".

 
 
Proviamo ora a fare un rendering, e verifichiamo che il tratteggio sia nel verso corretto.
 
 
 
Lo stile di linea del retino può ulteriormente essere modificato con i soliti parametri dalla finestra dei settaggi del motore di rendering.
 
 
 
 
Agendo sui parametri della linea retinatura possiamo ottenere una linea più leggera e meno precisa, oppure più pesante a seconda delle necessità.
 
 
Vediamo adesso qualche prova: posizioniamo una telecamera nel progetto e scegliamo una vista, settiamo il sole come se dovessimo fare un foto rendering settiamo il motore di schizzo su stile koinor e facciamo una prova.
 
 
 
Adesso se vogliamo applicare un tessitura tipo tavolato alle pareti settiamo il materiale con cui sono state fatte applicandogli un retino a tratteggio orizzontale e rifaccimo il rendering.
 
 
 
Ed ora personalizziamo un po' il tatto, prima diminuiamo l'intensità delle ombre, ed aumentiamo un po' l'estensione delle linee dell'ombra e la loro distorsione. Personalizziamo anche la linea dello schizzo in generale. Aumentiamo la prospettiva aerea nel menu miglioramenti in modo di rendere più chiara la parte in lontananza.
 
 
 

Chi è online

Abbiamo 2137 ospiti e nessun utente online

Utenti iscritti al sito

89748